22/9 Linkage Avenue, Cockburn Central WA 6164

Elegant Two-Bedroom Apartment in a Prime Location!

2
2
1
Sold $440,000

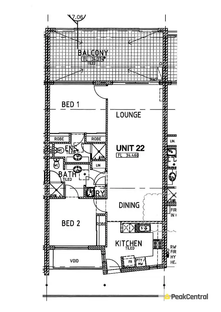
Introducing this luxurious two-bedroom, two-bathroom apartment, offering an array of amenities to elevate your lifestyle. Imagine hosting gatherings on the expansive balcony while relishing in the company of family and friends. Your peace of mind is assured with secure parking accessible only by remote in the complex.

Convenience is paramount, with the Cockburn Train Station approx. a mere 220m stroll away, ensuring effortless commuting. Ascend to the first-floor apartment via lift access, where you're greeted by an inviting open-plan layout. The kitchen boasts sleek stainless steel appliances, ample storage, and a convenient fridge recess.

Natural light floods the spacious living and dining area through floor-to-ceiling windows and sliding doors, seamlessly connecting to the generously sized balcony-a perfect setting for entertaining guests.

Retreat to the master bedroom, featuring built-in mirrored his and her wardrobes, and an ensuite bathroom for added privacy. The second bedroom offers ample space and includes a built-in mirrored robe. The main bathroom conveniently offers jack and jill access to both the second bedroom and hallway, making it ideal for sharing or hosting guests. Additionally, the main bathroom features a dedicated laundry cupboard and an extra linen cupboard.

Further enhancing the property are amenities such as a split system in the lounge, a storage cupboard in the communal hallway, secure parking, and a prime location!

Calling all Investors: Currently tenanted and achieving $480.00 per week, with a lease end date of 14/06/2024. Future potential rent ranging between $550.00 - $600.00 per week, subject to prevailing marketing conditions.

Disclaimer: Please ensure you check the property is in the catchment area for local schools. It is important to note that the photos included in this marketing material are for illustrational purposes only. Whilst every care has been taken in the preparation of the information contained in this marketing, please be aware that Peak Central will not be held liable for any errors in typing or information. Please understand that all information contained in this marketing is considered correct at the time of printing. However, we cannot guarantee that the information will be accurate or up-to-date at the time of viewing or use. Therefore, we recommend that you exercise due diligence when reviewing this material before making any decisions based on the information.

Agents

Richard Stacey
Richard Stacey
Managing Director

Property Information

  • Land area approx 118sqm
  • Floor area approx 79sqm

Property Features

  • Toilets 2
  • Ensuite 1
  • Carports 1

Location


Amenities

Success Primary School
Primary
Pri
Atwell Primary School
Primary
Pri
Jandakot Primary School
Primary
Pri
Harmony Primary School
Primary
Pri
Treeby Primary School
Primary
Pri
Atwell College
Secondary
Sec
Lakeland Senior High School
Secondary
Sec
Government schools within a 3km radius of this property are listed. Always check with your local school authority for enrollment elligibility. Source: Acara Australian Schools List
Divine Mercy College
Combined
Pri+Sec
Havenport MSL College
Combined
Pri+Sec
Mater Christi Catholic Primary School
Primary
Pri
SEDA College WA (Cockburn)
Secondary
Sec
Emmanuel Catholic College
Secondary
Sec
Alta-1 College - Cooper Road Campus
Special
Special
Alta-1 College - Hammond Road Campus
Special
Special
Only non-government schools within a 3km radius of this property are listed. Source: Acara Australian Schools List

Interested in this property?

Submit your enquiry or make an offer today and our team will provide all the details you need.

Enquire Now

More properties

72/1 Silas Street, East Fremantle For Sale by Peak Central Property Group
East Fremantle72/1 Silas Street
2
1
1
For Sale Offers From $699,000
1 Robertson Place, Bibra Lake For Sale by Peak Central Property Group
Bibra Lake1 Robertson Place
3
1
1
For Sale Offers From $979,000
41 Aventurine Parade, Wellard For Sale by Peak Central Property Group
Wellard41 Aventurine Parade
4
2
2
For Sale Offers From $779,000
1 Paradoxa Road, Hammond Park For Sale by Peak Central Property Group
Hammond Park1 Paradoxa Road
3
2
2
For Sale Offers Invited Over $700,000
17 Derwent Crescent, Success For Sale by Peak Central Property Group
Success17 Derwent Crescent
4
2
2
For Sale Offers From $879,000
34/20 Signal Terrace, Cockburn Central For Lease by Peak Central Property Group
Cockburn Central34/20 Signal Terrace
2
1
1
For Lease $620 per week
6/207 Hill View Terrace, Bentley For Lease by Peak Central Property Group
Bentley6/207 Hill View Terrace
4
2
2
For Lease $700 per week
28 Pedder Way, Parmelia For Lease by Peak Central Property Group
Parmelia28 Pedder Way
3
1
2
For Lease $580 per week
1 Payanna Grange, Lakelands For Lease by Peak Central Property Group
Lakelands1 Payanna Grange
3
2
2
For Lease $600 per week
6/55 Arkwell Street, Willagee For Lease by Peak Central Property Group
Willagee6/55 Arkwell Street
2
1
1
For Lease $650 per week
51 Amadeus Crescent, Port Kennedy For Lease by Peak Central Property Group
Port Kennedy51 Amadeus Crescent
4
2
3
For Lease $680 per week
50 Brooklands Drive, Henley Brook For Lease by Peak Central Property Group
Henley Brook50 Brooklands Drive
4
2
2
For Lease $720 per week
78 Cheltenham Loop, Bertram For Lease by Peak Central Property Group
Bertram78 Cheltenham Loop
4
2
2
For Lease $670 per week
34/2 Walsh Loop, Joondalup For Lease by Peak Central Property Group
Joondalup34/2 Walsh Loop
2
2
1
For Lease UNDER APPLICATION
16 Ballard Mews, Success For Lease by Peak Central Property Group
Success16 Ballard Mews
4
2
2
For Lease $780 per week
20/20 Signal Terrace, Cockburn Central For Lease by Peak Central Property Group
Cockburn Central20/20 Signal Terrace
2
1
1
For Lease $620 per week
18 Kettering Parkway, Wellard For Lease by Peak Central Property Group
Wellard18 Kettering Parkway
4
2
2
Land 289m²
For Lease $620 per week
5 Giara Lane, Darling Downs For Lease by Peak Central Property Group
Darling Downs5 Giara Lane
4
2
2
For Lease $600 per week
12 Stilton Way, Byford For Lease by Peak Central Property Group
Byford12 Stilton Way
4
3
2
For Lease $675 per week
16 Gadsden Terrace, Success For Lease by Peak Central Property Group
Success16 Gadsden Terrace
4
2
2
For Lease $800 per week
4 Exbury Lane, Success Sold by Peak Central Property Group
Success4 Exbury Lane
3
2
2
Sold Contact agent
Lot 14 2 Pearson Drive, Success Sold by Peak Central Property Group
SuccessLot 14 2 Pearson Drive
Land 163m²
Land
Sold Contact agent
22/208 Burslem Drive, Maddington Sold by Peak Central Property Group
Maddington22/208 Burslem Drive
2
1
1
Sold Contact agent
2/245 Coode Street, Como Sold by Peak Central Property Group
Como2/245 Coode Street
2
1
1
Sold Contact agent
4 Azure Lane, Warnbro Sold by Peak Central Property Group
Warnbro4 Azure Lane
4
2
2
Sold Contact agent
10 Hermitage View, Secret Harbour Sold by Peak Central Property Group
Secret Harbour10 Hermitage View
4
2
2
Sold Contact agent
9 Flores Place, Waikiki Sold by Peak Central Property Group
Waikiki9 Flores Place
4
2
2
Sold $676,000
24/105 Wentworth Parade, Success Sold by Peak Central Property Group
Success24/105 Wentworth Parade
2
2
1
Sold Contact agent
30/1 Stockton Bend, Cockburn Central Sold by Peak Central Property Group
Cockburn Central30/1 Stockton Bend
2
2
1
Sold Contact agent
28/59 King George Street, Victoria Park Sold by Peak Central Property Group
Victoria Park28/59 King George Street
2
1
60m²
Sold Contact agent
13 Stuart Court, Bateman Sold by Peak Central Property Group
Bateman13 Stuart Court
5
2
2
Sold Contact agent
96 Lydon Boulevard, Atwell Sold by Peak Central Property Group
Atwell96 Lydon Boulevard
4
2
2
185m²
Sold $890,000
18/1 Stockton Bend, Cockburn Central Sold by Peak Central Property Group
Cockburn Central18/1 Stockton Bend
2
2
1
Sold Contact agent
6/2 Argyle Place, Yangebup Sold by Peak Central Property Group
Yangebup6/2 Argyle Place
2
1
1
Sold Contact agent
44 Meyrick Way, Langford Sold by Peak Central Property Group
Langford44 Meyrick Way
3
1
2
Sold Contact agent
14 Tuart Place, Yangebup Sold by Peak Central Property Group
Yangebup14 Tuart Place
3
1
2
Sold Contact agent
12 York Lane, Viveash Sold by Peak Central Property Group
Viveash12 York Lane
Land 349m²
Land
Sold $385,000
4 Kawana Grove, Meadow Springs Sold by Peak Central Property Group
Meadow Springs4 Kawana Grove
3
2
3
Sold Contact agent
41 Briggs Street, South Lake Sold by Peak Central Property Group
South Lake41 Briggs Street
4
2
2
Sold $800,000
14 Trinity Road, Henley Brook Sold by Peak Central Property Group
Henley Brook14 Trinity Road
4
2
4
Land 263m²
Sold $710,000
67A Cooranga Road, Falcon Sold by Peak Central Property Group
Falcon67A Cooranga Road
3
2
4
Sold $695,000
32 Needlewood Loop, Wandi Sold by Peak Central Property Group
Wandi32 Needlewood Loop
4
2
2
Sold $758,500
×

Property Enquiry

Would you like some more information on this property, or maybe like to book an inspection?

×